CFD SKIMMING TANK

RESUMEN

En este reporte se describen los cálculos CFD ejecutados por PRODISYS para el proyecto de HOCOL correspondiente a la Ingeniería para el diseño de la planta de agua del campo Toldado para el Skimming Tank existente en campo. Las condiciones de operación del equipo corresponden a Caudal de fluido de 20000 BFPD a 127°F, con contenidos de crudo a la entrada que oscilan entre 200 y 500 ppm. El efecto en el modelo de los cambios de concentración es lineal hasta aproximadamente el 1% de volumen de la fase dispersa, para efectos de este análisis se define una concentración inicial a la entrada y las comparaciones entre diferentes concentraciones de entrada cómo lineales. Es decir que el porcentaje de crudo (no la cantidad) separado será aproximadamente el mismo.

Se elaboró un modelo aproximado axisimétrico que permite verificar las condiciones del flujo e incluir como valor agregado los efectos multifásicos.

Figura 1:
../../_images/Figura11.png

Skimming Tank de 3000 BFPD actual

Se realizaron dos corridas del modelo, la primera con una duración de proceso de 5.71 segundos y la segunda de 90 segundos a continuación se describen los resultados principales:

Para el caso 1 se observan, desde las Figuras. 8 a la 12, que los efectos de velocidad máxima para cada una de las fases se van incrementando a partir de la más baja (fase agua) hasta la más alta (fase de crudo de 250 micras), pasando de 1.85 m/s en la máxima del agua a 34.32 m/s en la máxima de aceite. Este incremento ocurre de manera dramática entre el crudo de 200 micras y el crudo de 250 micras, lo cual muestra una rápida separación del crudo de 250 micras, esta observación se respalda al observar las Figuras. 14 hasta la 18, en donde las fases de crudo de hasta 200 micras permanecen mezcladas en todo el volumen del fluido, mientras la fase de 250 micras presenta separación y formación de interfase en la zona de rebose de crudo del tanque. En la Figura. 19 se observan las líneas de corriente del flujo en donde se detecta un corto circuito incipiente entre las boquillas de entrada del fluido y la salida de agua. Para el caso 2 se observa, en la Figura. 24, el inicio de la separación de la fase del crudo evaluado en este caso (tamaño de gota de 150 micras), en la Figura. 26 se observa un patrón importante de corto circuito entre las boquillas de entrada de fluido y la salida del agua, siendo éste el hallazgo más importante de este análisis. En la Figura. 33 se observan los patrones de retorno del flujo que ascienden primero y luego va hacia la boquilla de salida de agua en el cual se observa la formación de algunos vórtices que disminuyen el volumen efectivo del equipo. Ambos casos se corrieron con la concentración de 200ppm para hacerlos comparables.

Introducción

Se requiere para la operación de la planta de tratamiento de agua suministrar a la batería de filtros de fibra vegetal, el agua en condiciones de contenido de aceite menor o igual a 50 ppm, por lo tanto, se debe verificar el equipo o equipos anteriores de manera que se obtenga el resultado esperado. El modelo axisimétrico realizado se elaboró para determinar flujos preferentes del fluido dentro del equipo y verificar si estos flujos pueden producir efectos tales como corto circuito (Flujo preferente directo entre la entrada de fluido y la salida de agua, identificar zonas de vórtices o de altas velocidades que le quiten eficiencia al equipo y otros hallazgos que puedan ser determinantes para su funcionamiento). Como una actividad adicional fuera del alcance acordado para el proyecto, se incluyeron efectos multifásicos, aunque se aclara que estos no corresponden al tiempo total de residencia. Su objetivo es meramente descriptivo y permite predecir algunos comportamientos de las diferentes fases. La aproximación axisimétrica modelada representa un corte perpendicular del tanque comprendido entre el eje central del tanque y la pared del mismo, la aproximación numérica predice el comportamiento de un tanque que corresponde a la rotación de esta sección. En este sentido el modelo aproxima de manera cercana el rebose de la salida de Crudo, aproxima las entradas al equipo como anillos y no como los brazos del equipo real (Ver Figura 1.) y aproxima la salida del agua como un anillo perimetral. Para el análisis se tendrá en cuenta y aclarará la aproximación utilizada. Realizar el modelo axisimétrico permite incluir resultados como el caso del flujo multifásico con tiempos de corrida razonables para este análisis. Los caudales simulados corresponden tanto a las entradas como a las salidas con los caudales de diseño de 20.000BFPD.

OBJETIVO

Como apoyo a los cálculos de proceso se realiza la revisión CFD para determinar los patrones de flujo y posibles mejoras al Skimming Tank.

Método

El modelo axisimétrico CFD representa la parte interna del tanque correspondiente al fluido. En realidad, el tanque no es completamente axisimétrico ya que el distribuidor de entrada corresponde a 8 brazos y la salida del agua corresponde a una sola boquilla, sin embrago con el modelo podemos visualizar comportamientos generales del flujo, comportamientos de las fases y prever cambios en internos que se puedan realizar. El modelo axisimétrico, es una valida representación numérica de un comportamiento tridimensional. La entrada del fluido fue simulada como tres anillos con la misma velocidad de entrada del fluido de las boquillas del equipo real, la salida de agua fue simulada como un anillo de ancho igual al diámetro de salida del tubo real (Velocidad inferior a la del tubo real) y el rebose del crudo fue simulado como un anillo con la misma altura del diente de sierra del rebose del tanque real. Se incluyó la gravedad como una carga en el cuerpo del fluido, se incluyó el modelo “K épsilon” como caso turbulento. Se modelaron dos casos para el fluido multifásico, el caso 1 corresponde a una fase de agua y 5 fases de crudo (50 micras, 100 micras, 150 micras, 200 micras, 250 micras de tamaño de gota) y en el caso 2 una fase de agua y una fase de crudo con 150 micras de tamaño de gota. Los resultados de estos análisis se presentan en forma descriptiva según la necesidad de lo que se pretende explicar. Para el caso 1 la concentración de crudo de 200ppm se distribuyó de manera lineal para los tamaños de gota de 50 a 250 micras.

Alcance

El alcance de este estudio es el de proveer valores indicativos, valores comparativos y descripción de flujos dentro del dominio del modelo. Varias simplificaciones y datos asumidos en el modelo no permiten predicciones exactas, para este efecto se requeriría un modelo tridimensional completo que esta fuera del alcance de este estudio.

Esquema del informe

El modelo CFD y las soluciones del modelo se describen en el capítulo 4, en el capítulo 5 se presentan los resultados del CFD y en el capítulo 6 presentan las conclusiones y recomendaciones.

LOCALIZACIÓN DEL PROYECTO

La batería Toldado se encuentra ubicada dentro del bloque Ortega Tetuán, en inmediaciones del municipio de Ortega en el departamento del Tolima - Colombia, cuyas coordenadas son las siguientes: 3º52’11,75” N, 75º16’56,82” E. Se muestra la ubicación geográfica del lugar, la cual se obtuvo con la ayuda de la herramienta de Google Earth (Figura 2).

Para llegar a la batería se debe seguir la ruta Bogotá – Neiva y después del municipio del Guamo tomar la vía hacía el municipio de Ortega, recorriendo una distancia aproximada de 46 km hasta llegar a Toldado, tal y como se ilustra en la figura 3.

Figura 2:
../../_images/Figura11.png

Localización batería Toldado

Figura 3:
../../_images/Figura3.png

Ruta desde el Guamo a Batería Toldado

Éstas referencias fueron tomadas del documento “Localización del proyecto” de la Ingeniería conceptual del proyecto.

MODELO CFD

Se describe el modelo utilizado en la simulación del Skimming Tank

EL MODELO CFD

Este numeral describe el modelo CFD. El modelo CFD está basado en las siguientes fuentes de información:
  • SOH-RO-0909-DC-43-0002 AMPLIACION, RECOLECCION Y TRATAMIENTO TOLDADO DETALLES INTERNOS TANQUE

  • Reporte agua campo toldado recibido como información de entrada del proyecto

(Ver anexos 7.1 y 7.2). Varios datos no están en las anteriores tablas, esos valores se asumieron basados en propiedades de fluidos similares a los del modelo. Los resultados numéricos presentados en el presente informe son solamente indicativos.

Software

La discretización del modelo se realizó utilizando Salome–Meca V2016.0 LPGL1. El modelo se resolvió utilizando OpenFOAM2, versión 4.0, ambos códigos abiertos para pre procesamiento y análisis.

Unidades

El modelo CFD se realizó utilizando el sistema internacional de unidades, las temperaturas están expresadas en grados Celsius, las presiones están dadas en las unidades utilizadas por el software que se calculan como la presión en Pascales dividida entre la densidad. La presión utilizada es referencial ya que el modelo no requiere que sea absoluta. Este reporte presente valores en esas unidades

Sistema de coordenadas

El origen del sistema de coordenadas está localizado en el centro del tanque a nivel 0, más o menos en el fondo del mismo. El eje X apunta radialmente hacia la pared del tanque, el eje Y es el eje central apuntando hacia arriba, el eje Z no se toma en cuenta debido a la naturaleza axisimétrica del modelo, pero es ortogonal a los anteriores.

Geometría

El modelo axisimétrico CFD está construido usando la facilidad de modelamiento solido; Primero son definidos vértices, líneas y áreas, las áreas se agrupan en un componente que puede ser transferido a la facilidad de enmallado dentro del componente, muchas áreas, líneas y vértices agrupados son definidos para procesamiento posterior en la facilidad de enmallado. Una vez generada la malla se asignan grupos correspondientes a las paredes y techo del tanque a la entrada de fluido, a la salida de aceite y a la salida del agua, respectivamente.

Posteriormente se realiza una extrusión para generar una sección axial de 5 grados de rotación, tal como lo requiere el modelo axisimétrico de OpenFOAM. El máximo nivel de líquido simulado es de 6.746 m, el diámetro del tanque es de 9.14 m, los anillos de entrada de fluidos tienen 0.0023 m de espesor y están localizados en 0.78 m, 2.4 m y 4.03 m de radio respectivamente, la salida de agua está a una altura de -0.532 m por debajo del nivel 0 del tanque localizado a un radio de 3.23 m y con un ancho de 0.2032 m. La salida del rebose de crudo es un anillo que inicia a la altura de 6.720 m y tiene un ancho de 0.0026 m correspondientes a la altura del diente de sierra del rebose.

Figura 4:
../../_images/Figura4.png

Geometría discretizada del modelo para CFD

Discretización

La geometría solida está dividida en nodos y elementos usando el generador de mallas del programa Salome-Meca. El modelo contiene 29646 nodos y 80658 elementos. (Ver figura 5.)

Figura 5:
../../_images/Figura5.png

Información de la malla del modelo para CFD

Tipos de elementos

Los elementos usados son 2D, Net Gen 1D-2D incluyendo elementos 1D para los segmentos de las fronteras y discretización logarítmica de elementos en las fronteras para tener en cuenta efectos viscosos. En el análisis de flujo los grados de libertad en cada nodo son: Presión, Velocidad por fase (Vector), concentración de la fase, K, épsilon y Nut.

Materiales

Los fluidos modelados en la geometría del tanque corresponden a agua y crudo en las condiciones indicadas en la tabla:

FLUIDO

(kg/m2)

DENSIDAD CINEMÁTICA

VISCOSIDAD

(micras)

TAMAÑO DE GOTA

(m2/s)

CASO 1: AGUA + DISTRIBUCIÓN DE GOTA DE CRUDO

AGUA

995.9

5.53x10-7

50, 100, 150, 200 y 250

CRUDO

881

1.3x10-4

CASO 2: AGUA + TAMAÑO DE GOTA DE CRUDO

AGUA

995.9

5.53x10-7

CRUDO

881

1.3x10-4

150

Valores tomados como referencia previos al conocimiento de las propiedades reales de los fluidos en campo Estos valores son referenciales ya que en el momento de la corrida de los modelos no se tenía la temperatura de operación del Skimming Tank. Se incluye en el informe de optimización del diseño una corrida con los datos de entrada específicos de este campo.

Condiciones de frontera, CONDICIONES INICIALES y cargas

Caso 1 corrida 5.7 segundos

Este caso corresponde a la simulación CFD multifásica que contiene una fase de agua y 5 fases de crudo, cada una para un tamaño de gota. Teniendo en cuenta la complejidad de este modelo el tiempo de proceso simulado al momento de la elaboración de este informe era de 5.71 segundos. La gravedad se aplicó como una carga de cuerpo de -9.81 m3/s2.

4.3.1.1 Condiciones Iniciales

La velocidad inicial del fluido dentro del volumen del tanque es igual a 0 m/s2 La concentración de fases de crudo corresponde a un volumen de agua con una distribución lineal de crudo en ella correspondiente a una concentración de 200 mg/l.

4.3.1.1 Condiciones de frontera
  • Velocidad de entrada del fluido: 0,349170943371817 m/s correspondiente a un caudal de 0.036800926 m3/s

  • Velocidad de salida de aceite: 9,85869E-06 m/s correspondiente a un caudal de 7.36019E-06 m3/s

  • Velocidad de salida de agua: 0,000526961 m/s correspondiente a un caudal de 0.036793566 m3/s

  • Presión de referencia se coloca como un valor constante en la boquilla de entrada de fluido.

Caso 2 corrida 90 segundos

Este caso corresponde a la simulación CFD multifásica que contiene una fase de agua y una fase de crudo, cada una para un tamaño de gota. Teniendo en cuenta la complejidad de este modelo el tiempo de proceso simulado al momento de la elaboración de este informe era de 90.89 segundos.

4.3.2.1 Condiciones Iniciales
  • La velocidad inicial del fluido dentro del volumen del tanque es igual a 0 m/s2

  • La concentración de fase de crudo corresponde a un volumen de agua con una distribución lineal de crudo en ella correspondiente a una concentración de 200 mg/l.

4.3.2.2 Condiciones de frontera
  • Velocidad de entrada del fluido: 0,349170943371817 m/s correspondiente a un caudal de 0.036800926 m3/s

  • Velocidad de salida de aceite: 9,85869E-06 m/s correspondiente a un caudal de 7.36019E-06 m3/s

  • Velocidad de salida de agua: 0,000526961 m/s correspondiente a un caudal de 0.036793566 m3/s

  • La presión de referencia se coloca como un valor constante en la boquilla de entrada de fluido.

solución

El análisis CFD tiene en cuenta los efectos transientes, los efectos de turbulencia y las fases presentes. El modelo CFD del caso 1 se resolvió en una plataforma Corel i7 con 4 cores, corriendo en un sistema Ubuntu 16.0 con 8 gigas en memoria RAM, la geometría y la malla fueron generadas en unos pocos segundos. Solucionar el modelo hasta 5.71 segundos de proceso, toma 1.296.000 segundos. El modelo CFD del caso 2 se resolvió en una plataforma Corel i7 con 4 cores, corriendo en un sistema Ubuntu 16.0, con 8 gigas en memoria RAM, la geometría y la malla fueron generadas en unos pocos segundos. Solucionar el modelo hasta 90 segundos de proceso, toma 1.036.800 segundos.

RESULTADOS CFD

En este capítulo se presentan los resultados obtenidos para los tiempos de corrida de los casos 1 y 2. Se presentan resultados de post-procesamiento de campos de presión, campos de velocidad, líneas de corriente y proporciones de fase. Las escalas presentadas a la derecha de cada gráfica representan en colores la magnitud arriba indicada. Inicialmente, se hace una presentación global de los resultados. Los resultados específicos y los análisis de estos resultados se presentan en párrafos siguientes.

Patron de flujo

En este numeral se presentan imágenes de los resultados del CFD.

Figuras Caso 1

Figura 6:
../../_images/Figura6.png

Campo escalar de presiones a los 5.71 segundos

Figura 7:
../../_images/Figura7.png

Magnitud de la velocidad del agua a los 5.71 segundos

Figura 8:
../../_images/Figura8.png

Magnitud de velocidad de la fase de 50 micras del crudo a los 5.71 segundos

Figura 9:
../../_images/Figura9.png

Magnitud de velocidad de la fase de 100 micras del crudo a los 5.71 segundos

Figura 10:
../../_images/Figura10.png

Magnitud de velocidad de la fase de 150 micras del crudo a los 5.71 segundos

Figura 11:
../../_images/Figura111.png

Magnitud de velocidad de la fase de 200 micras del crudo a los 5.71 segundos

Figura 12:
../../_images/Figura12.png

Magnitud de velocidad de la fase de 250 micras del crudo a los 5.71 segundos

Figura 13:
../../_images/Figura13.png

Campo escalar de la fase agua a los 5.71 segundos

Figura 14:
../../_images/Figura14.png

Campo escalar de la fase de 50 micras a los 5.71 segundos

Figura 15:
../../_images/Figura15.png

Campo escalar de la fase de 100 micras a los 5.71 segundos

Figura 16:
../../_images/Figura16.png

Campo escalar de la fase de 150 micras a los 5.71 segundos

Figura 17:
../../_images/Figura17.png

Campo escalar de la fase de 200 micras a los 5.71 segundos

Figura 18:
../../_images/Figura18.png

Campo escalar de la fase de 250 micras a los 5.71 segundos

Figura 19:
../../_images/Figura19.png

Líneas de corriente de agua en diferentes zonas del tanque (flujo preferencial entre la entrada y la salida de agua) a los 5.71 segundos

Figura 20:
../../_images/Figura20.png

Líneas de corriente de agua en diferentes zonas del tanque (flujo preferencial entre la entrada y la salida de agua) a los 5.71 segundos

Figura 21:
../../_images/Figura21.png

Líneas de corriente de agua en diferentes zonas del tanque (flujo preferencial entre la entrada y la salida de agua) a los 5.71 segundos

Figura 22:
../../_images/Figura22.png

Líneas de corriente de agua en diferentes zonas del tanque (flujo preferencial entre la entrada y la salida de agua) a los 5.71 segundos

Figuras Caso 2

Figura 23:
../../_images/Figura23.png

Campo escalar de presiones a los 90 segundos

Figura 24:
../../_images/Figura24.png

Tamaño de gota de crudo de 150 micras a los 90 segundos

Figura 25:
../../_images/Figura25.png

Campo escalar de la fase de 50 micras a los 5.71 segundos

Figura 26:
../../_images/Figura26.png

Líneas de corriente de agua en diferentes zonas del tanque (flujo preferencial entre la entrada y la salida de agua) a los 90 segundos

Figura 27:
../../_images/Figura27.png

Líneas de corriente de agua en diferentes zonas del tanque (flujo preferencial entre la entrada y la salida de agua) a los 90 segundos

Figura 28:
../../_images/Figura28.png

Líneas de corriente de agua en diferentes zonas del tanque (flujo preferencial entre la entrada y la salida de agua) a los 90 segundos

Figura 29:
../../_images/Figura29.png

Líneas de corriente de agua en diferentes zonas del tanque (flujo preferencial entre la entrada y la salida de agua) a los 90 segundos

Figura 30:
../../_images/Figura30.png

Líneas de corriente de agua en diferentes zonas del tanque (flujo preferencial entre la entrada y la salida de agua) a los 90 segundos

Figura 31:
../../_images/Figura31.png

Líneas de corriente de agua en diferentes zonas del tanque (flujo preferencial entre la entrada y la salida de agua) a los 90 segundos

Figura 32:
../../_images/Figura32.png

Líneas de corriente de agua en diferentes zonas del tanque (flujo preferencial entre la entrada y la salida de agua) a los 90 segundos

Figura 33:
../../_images/Figura33.png

Líneas de corriente de agua en diferentes zonas del tanque (flujo preferencial entre la entrada y la salida de agua) a los 90 segundos

PATRONES DE FLUJO

Para el caso 1 se observan, desde las Figuras. 8 a la 12 que los efectos de velocidad máxima para cada una de las fases se van incrementando a partir de la más baja (fase agua) hasta la más alta (fase crudo de 250 micras), pasando de 1.85 m/s en la máxima del agua a 34.32 m/s en la máxima de aceite. Pero éste incremento ocurre de manera dramática en un salto de 17 veces entre el crudo de 200 micras y el crudo de 250 micras, lo cual muestra una rápida separación del crudo de 250 micras hacia arriba, esta observación se respalda al verificar las Figuras. 14 a la 18, en donde las fases de crudo de hasta 200 micras permanecen mescladas en todo el volumen del fluido, mientras la fase de 250 micras presenta separación y formación de interfase en la zona de rebose de crudo del tanque. En la Figura. 19 se observan las líneas de corriente del flujo en donde se detecta un corto circuito incipiente entre las boquillas de entrada del fluido y la salida de agua.

Para el caso 2 se observa, en la Figura. 24 el inicio de la separación de la fase del crudo evaluado en este caso (tamaño de gota de 150 micras), en la Figura. 26 se observa un patrón importante de corto circuito entre las boquillas de entrada de fluido y la salida del agua, siendo éste el hallazgo más importante de este análisis. En la Figura. 33 se observan los patrones de retorno del flujo que ascienden primero y luego va hacia la boquilla de salida de agua en el cual se observa la formación de algunos vórtices que disminuyen el valor efectivo del equipo.

CONCLUSIONES

  • Los modelos del caso 1 y el caso 2, muestran una rápida tendencia de separación del tamaño de gota de 250 micras hacia arriba, por lo cual es muy conveniente tener un flujo lento y uniforme antes de la entrada del Skimming que permita el crecimiento de gota. Se debe tener en cuenta que los tiempos de corrida de la separación multifásico para obtener información de separación de tamaños de gota menores son muy altos (Fuera de este alcance), por lo tanto, los análisis de los internos se apoyarán de cálculos analíticos complementarios ver documento OT-TD-P-IF-007 DEFINICIÓN INTERNOS SKIMMING TANK.

  • La configuración actual del equipo permite la formación de flujos preferentes (corto circuito) entre las boquillas de entrada y la salida de agua. Se recomienda generar diseñar internos que eviten o mitiguen este efecto.

  • La velocidad de entrada del fluido permite la formación de vórtices que restan capacidad de tratamiento al Skimming, se recomienda generar internos que permitan mejorar la velocidad de ascenso.

  • En el modelo realizado, se asumieron características que restan precisión a los resultados obtenidos, se recomienda realizar un modelo tridimensional completo.

ANEXOS

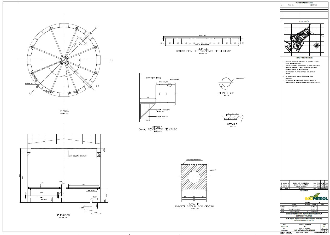
PLANO DE SKIMMING TANK ACTUAL

Figura 34:
../../_images/Figura34.png

Plano Skimming

REPORTE AGUA CAMPO TOLDADO

Figura 35:
../../_images/Figura34.png

Datos extraídos de archivo REPORTE DE AGUA TOLDADO.xls (información recibida del cliente el 16 de agosto de 2017)